Nu finns möjlighet att hyra en rymlig och välplanerad kommersiell fastighet i Ystads industriområde. Lokalen passar utmärkt för lager, verkstad, butik, produktion eller kombinerad verksamhet med kontor.
Fastigheten har en total yta om ca 1 040 kvm och är uppdelad i funktionella och lättanpassade ytor.
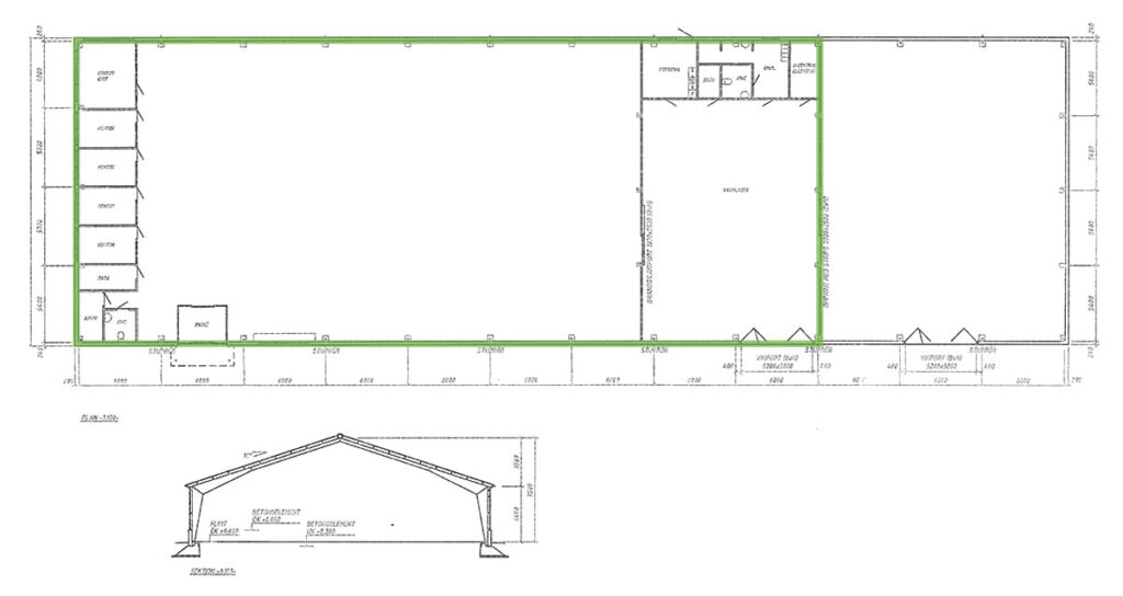
Lokalfördelning
- 2 st lager/verkstad/butikslokaler
- 48 × 21,6 m – med port och kundentré via luftsluss
- 12 × 21,6 m – med port
- 5 st kontor i varierande storlek
- Kök/personalutrymme
- Omklädningsrum
- Dusch
- HCP-anpassad toalett
Fördelar
- Generös takhöjd och öppna ytor
- Portar som underlättar logistik och varuhantering
- Kundentré gör lokalen lämplig även för butik eller showroom
- God standard på personalutrymmen
- Flexibel planlösning – möjlighet att anpassa efter verksamhet
- Belägen i etablerat industriområde i Ystad med god tillgänglighet
Läge
Fastigheten är belägen i Ystads industriområde med smidig access för både personal, kunder och transporter. Närhet till större vägar och goda kommunikationer.
Intresserad? Ring 0708 56 66 16








.